상시 줍줍! 용인 에버랜드역 칸타빌 분양가, 평면도, 중도금대출

안녕하세요, 부리남입니다.
오늘은 용인 에버랜드역 칸타빌 선착순동호지정계약(상시줍줍)정보를 살펴보겠습니다. 용인 애버랜드역 칸타빌은 경기도 용인시 처인구 포곡읍 전대리 192-2외 5필지에 위치합니다. 용인 에버랜드역 칸타빌은 최고 29층, 9개동, 총 348세대 규모입니다. 이중 잔여세대를 선착순동호지정계약(상시 줍줍)으로 공급합니다.
용인 에버랜드역 칸타빌은 초역세권인데, 소형단지입니다. 삼성전자 300조와 SK하이닉스 120조 투자가 들어오는 처인구지만, 절대 가깝지는 않습니다. 청약시장이 좋다면, 초역세권과 일자리가 눈에 띄겠지만, 요새 분위기는 다시 차가워지는 분위기입니다. 그래도, 전매제한이 6개월이고, 준공이 2026년 11월이니 투자자들은 관심을 가져볼 조건은 가지고 있는데요. 선착순동호지정계약으로 나온만큼 이제 지역제한도 없고, 통장도 필요없습니다. 안전마진만 확인하면 되겠습니다. 그럼, 리뷰 시작합니다.


입주자 모집공고
(오른쪽 화살표를 눌러야 볼 수 있습니다)
청약자격
▶ 청약통장 사용 X
▶ 세대주, 세대원 모두 계약가능
▶ 유주택자도 계약가능
▶ 전입의무 / 실거주의무 無
▶ 중도금 대출 2건 가능(개인별 상이)
▶ 취득세 1.1% (2주택자 까지 해당)
청약일정
- 최초 모집공고 : 11월 6일
- 선착순동호지정계약 : 상시
- 입주예정일 : 2026년 11월
청약방법
▶ 견본주택 방문
- 주소 : 경기도 용인시 기흥구 보정동 374-30
- 문의 : 031-256-8090
▶ 특이사항
1) 계약금 5% 변경(2024.7.8 업데이트)
2) 중도금 전부 무이자로 변경(2024.7.8 업데이트)
▶ 공통 구비서류
(보통 안내는 이렇게 하지만, 실제로는 신분증과 계약금만 챙겨가시면 됩니다)
(추후 방문 제출 가능)
1) 신분증
2) 주민등록표등본 1부
3) 인감증명서(또는 본인서명사실확인서) 1부
4) 인감도장(또는 서명)
5) 대리인 추첨 및 계약 시(추가) : 위임장(견본주택 내 비치), 인감증명서(위임용) 1부, 대리인 신분증 및 도장
※ 모든 구비 서류는 1개월 이내 발급분에 한합니다.
※ 본인 외(배우자 포함) 모두 제3자로 간주합니다.

공급규모 및 분양가
총 348세대 일반분양
* 잔여세대 비공개
- 59A타입(118세대) : 4.43억
- 59B타입(14세대) : 4.34억
- 74타입(62세대) : 5.30억
- 84A타입(128세대) : 5.73억
- 84B타입(13세대) : 5.72억
- 84C타입(13세대) : 5.76억




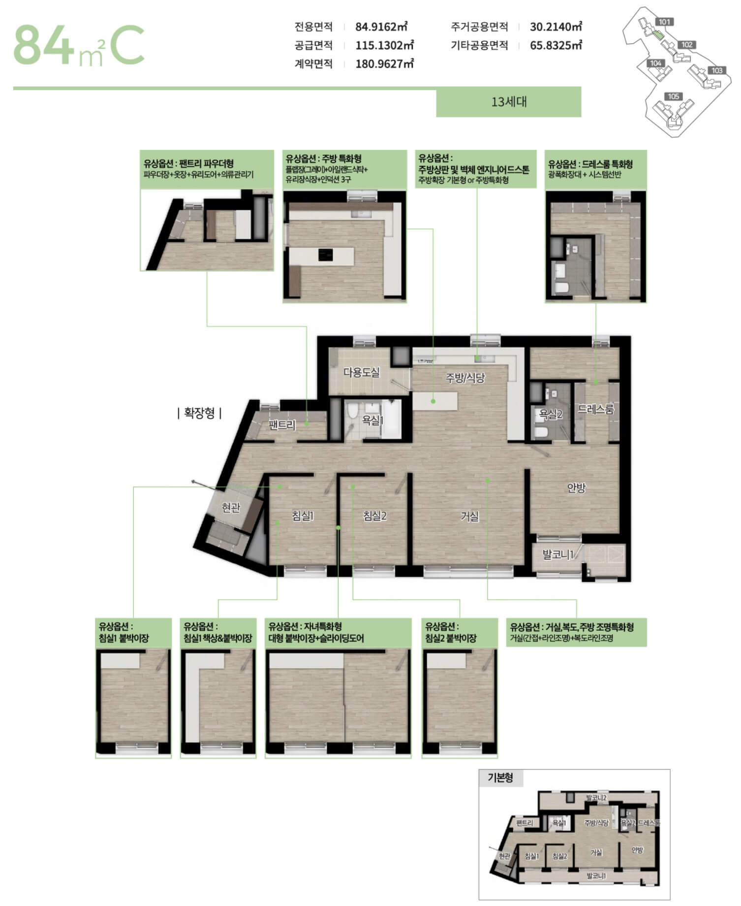
단지배치도 및 평면도








입지환경








부리남 분석
1. 비교단지 호가 vs 분양가
- 용인보평역서희스타힐스 59㎡ 호가 : 3.5억(저/32층, P5000)
- 84㎡ 환산시 : 4.98억
- 용인 에버랜드역 칸타빌 84㎡ 분양가 : 5.76억
- 용인보평역서희스타힐스(2023년 12월 준공, 1963세대)를 인접단지 중 비교단지가 없어, 에버라인을 따라 역세권+초등학교가 가까운 곳으로 비교단지를 잡았습니다. 주변환경과 세대수 차이를 감안한 비교가치는 5.38억으로 안전마진은 없습니다.
2. 규제사항 : 비규제지역, 분양가상한제 미적용
3. 전매제한(당첨자발표일 기준) : 6개월
4. 재당첨제한(당첨자발표일 기준) : 없음
5. 거주의무(입주시점 기준) : 없음
6. 중도금대출 : 60%, 무이자(1,2회차)+이자후불제(3-6회차)
* 중도금 전부 무이자로 변경(2024.7.8 업데이트)
7, 최초 경쟁률

7. 최종의견
용인 에버랜드역 칸타빌는 나홀로 단지입니다. 주변에 아파트 단지도 없고, 주거환경이 좋지는 않습니다. 위에서 살펴보았듯이 역이랑 정말 가깝고, 에버라인 마지막 역인만큼 앉아서 갈 수 있다는 장점이지만, 마지막역인 기흥역에 가야 다른 노선들과 환승이 가능해 의미가 있다는 것이 단점입니다. 의외로 초등학교도 가깝고, 중학교도 다닐만한 거리에 있습니다. 일대에서는 유일한 신축으로 시세를 스스로 형성해야할텐데요. 초등학교와 중학교가 유지되고 있는 정도면, 충분히 주거수요는 있을 것입니다.
하지만, 다시 살펴보아도 투자로 접근할 곳은 아닙니다. 혹시 실거주하실 분들이더라도, 에버라인의 다른 역세권단지들도 대안이 될 수 있으니, 먼저 검토해보시기를 추천드립니다. 그래도, 잡으시겠다면 비규제지역 무주택자 LTV 70%기준으로 잔금대출을 받는다면, 필요현금은 2.0억+@(발코니확장, 옵션비, 취득세)라는 점 알려드리고요. 계약금은 5%씩 분납이고, 중도금대출은 1,2차는 무이자, 나머지 회차는 이자후불제입니다. 오늘도 부리남이었습니다.
분양 홈페이지
용인 에버랜드역 칸타빌
용인 에버랜드역 칸타빌 기대, 그이상의 미래가 있는 곳 문의 | 031-265-8090
www.yi-cantavil.com
단톡방 및 채널 안내
아래 단톡방은 별도 공지없이 매달 2일(1월 2일) 비밀번호 해제합니다.
오픈시간은 대체로 04-10시 사이입니다. 00시부터 대기하시지 않으셔도 됩니다.
함께 공부하는 단톡방 '부의 사다리'
부의 사다리 : https://open.kakao.com/o/gO3aTU6c
사다리
#이사 #안전이동 #고층가능 #안전포장
open.kakao.com
(오)늘의 (매)물 (기)록 : '오매기'
매일 단톡방 회원님들과 관심지역의 매물들을 공유하고 있는 방입니다. 매달 리포트 1건이 의무입니다. 열심히 하실 분들만 참석해주세요. 지난 하락장에서 부자들은 기회를 잡고 부의 사다리를 올랐습니다. 요새가 하락장이라면, 우리도 그래야합니다.
오매기 : https://open.kakao.com/o/gg4IrQAe
오매기
#쫀득쫀득 #당일취급 #제주도
open.kakao.com
주의사항
1. 게시자 : 부리남은 청약강사나 청약전문가가 아니며, 강의나 출판에 관심이 없습니다. 댓글을 통한 출판사나 학원의 강의요청은 정중히 거절합니다. 모집공고와 분양홈페이지를 기반으로 포스팅을 합니다. 자주 틀립니다. 틀린 부분을 알려주시면, 수정합니다.
2. 투자 : 부리남 개인적인 의견이니 투자의 책임은 투자자 본인에게 있음을 알려드립니다.
3. 저작권 : 본 포스팅을 무단복제한 경우, 사전 안내없이 네이버/다음에 신고합니다. 계정정지나 삭제의 불이익이 없도록 무단복제는 주의 부탁드립니다.