8.26 청약! 잠실르엘 미리보기

안녕하세요, 부리남입니다.
오늘은 잠실르엘 청약 정보(분양가, 평면도, 중도금대출)를 미리 살펴보겠습니다. 잠실르엘은 서울특별시 송파구 신천동 17-6일대에 위치합니다. 잠실르엘은 최고 35층, 13개동, 총 1865세대 규모입니다. 잠실미성크로바 재건축정비사업으로 이중 216세대를 일반분양합니다.
잠실르엘은 작년 잠실래미안아이파크를 놓친 분들을 위한 단지입니다. 바로 옆 단지지만, 일반분양은 많이 줄었습니다. 대출여력은 더 줄었는데요. 그래서, 아주 어쩌면 당첨가능성이 올라가지 않을까요? 정말 만의 하나의 경우를 위해서 추첨제와 대출을 중심으로 다루어봅니다. 입지는 이미 알만큼 알고 있는 곳이니까요. 리뷰 시작합니다.
[단독]잠실르엘 '공사중단' 피했다…이르면 이달 말 일반분양
[단독]잠실르엘 '공사중단' 피했다…이르면 이달 말 일반분양
서울 송파구 일대 재건축 ‘최대어’로 꼽히는 잠실미성·크로바아파트 재건축 사업(잠실르엘)이 당초 예정했던 대로 이르면 이달 말께 일반분양에 나설 수 있게 됐다. 당초 조합 내분으로 오는
www.edaily.co.kr
“우리집도 비 안 맞고 백화점 간대” 잠실르엘, 잠실역과 연결된다[부동산360] - 헤럴드경제
“우리집도 비 안 맞고 백화점 간대” 잠실르엘, 잠실역과 연결된다[부동산360]
[헤럴드경제=신혜원 기자] 올해 말 입주를 목표로 재건축 공사를 진행 중인 서울 송파구 신천동 ‘잠실르엘’이 지하도로를 통해 잠실역과 연결될 전망이다. 단지 내 상가
biz.heraldcorp.com
입주자 모집공고(추후 업데이트)
(오른쪽 화살표를 눌러야 볼 수 있습니다)
청약자격
- 서울특별시 거주자 및 수도권(인천광역시, 경기도)지역에 거주자
- 서울특별시에 2년 이상 계속 거주자 우선공급
- 청약통장에 가입하여 2년이 지난 자로서 예치기준금액을 납입 할 것
- 세대주일 것
- 과거 5년 이내 당첨된 자의 세대에 속하지 않을 것
- 2주택 이상을 소유한 세대에 속하지 않을 것
- 전용면적 60㎡ 이하 : 가점제 (40%) 및 추첨제(60%) 적용
- 전용면적 60㎡ 초과 85㎡ 이하 : 가점제 (70%) 및 추첨제(30%) 적용
- 전용면적 85㎡ 초과 : 가점제 (80%) 및 추첨제(20%) 적용
청약일정
- 모집공고 : 8월 14일
- 청약접수 : 8월 26일
- 당첨자 발표 : 9월 3일
- 계약일 : 미정
- 입주예정일 : 2026년 3월 예정
청약방법
https://www.applyhome.co.kr/co/coa/selectMainView.do
www.applyhome.co.kr
공급규모 및 분양가

* 총 1865세대 중 216세대 일반분양
* 계약금 20% 예상
- 45타입(46세대) : 11.63억 예상
- 51타입(11세대) : 13.19억 예상
- 59B타입(92세대) : 15.26억 예상
- 74B타입(39세대) : 19.13억 예상
- 74C타입(28세대) : 19.13억 예상
* 참고(2024년 10월, 잠실래미안아이파크) : 총 2678세대 중 589세대 일반분양
* 계약금 20%
- 43타입(114세대) : 11.15억
- 59A타입(49세대) : 15.22억
- 59B타입(18세대) : 15.02억
- 59C타입(51세대) : 15.18억
- 74A타입(11세대) : 17.43억
- 74B타입(10세대) : 17.70억
- 74C타입(14세대) : 17.96억
- 84A타입(76세대) : 19.03억
- 84B타입(5세대) : 19.08억
- 84C타입(24세대) : 18.64억
- 84D타입(177세대) : 18.90억
- 84E타입(15세대) : 18.45억
- 104A타입(6세대) : 22.46억
- 104B타입(4세대) : 22.49억
- 104C타입(12세대) : 22.51억
- 104D타입(3세대) : 22.43억
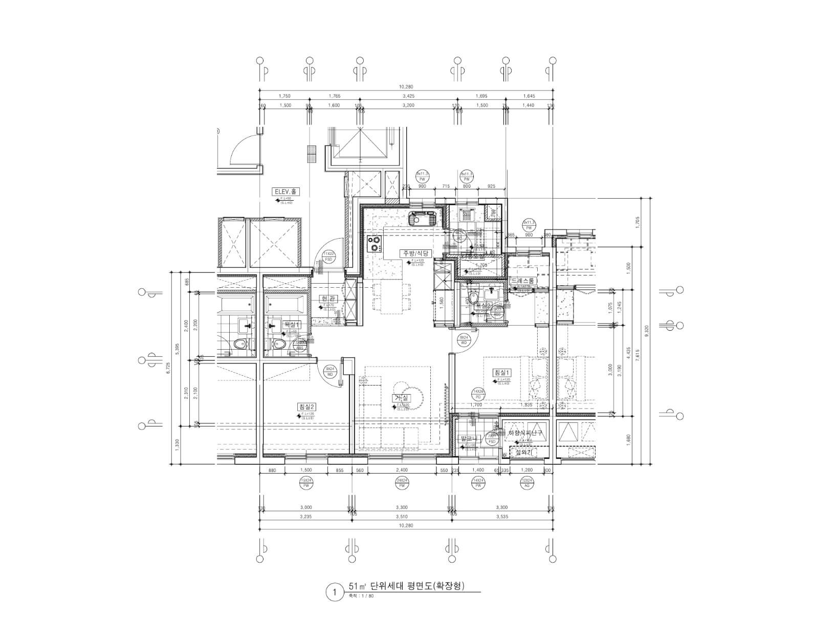
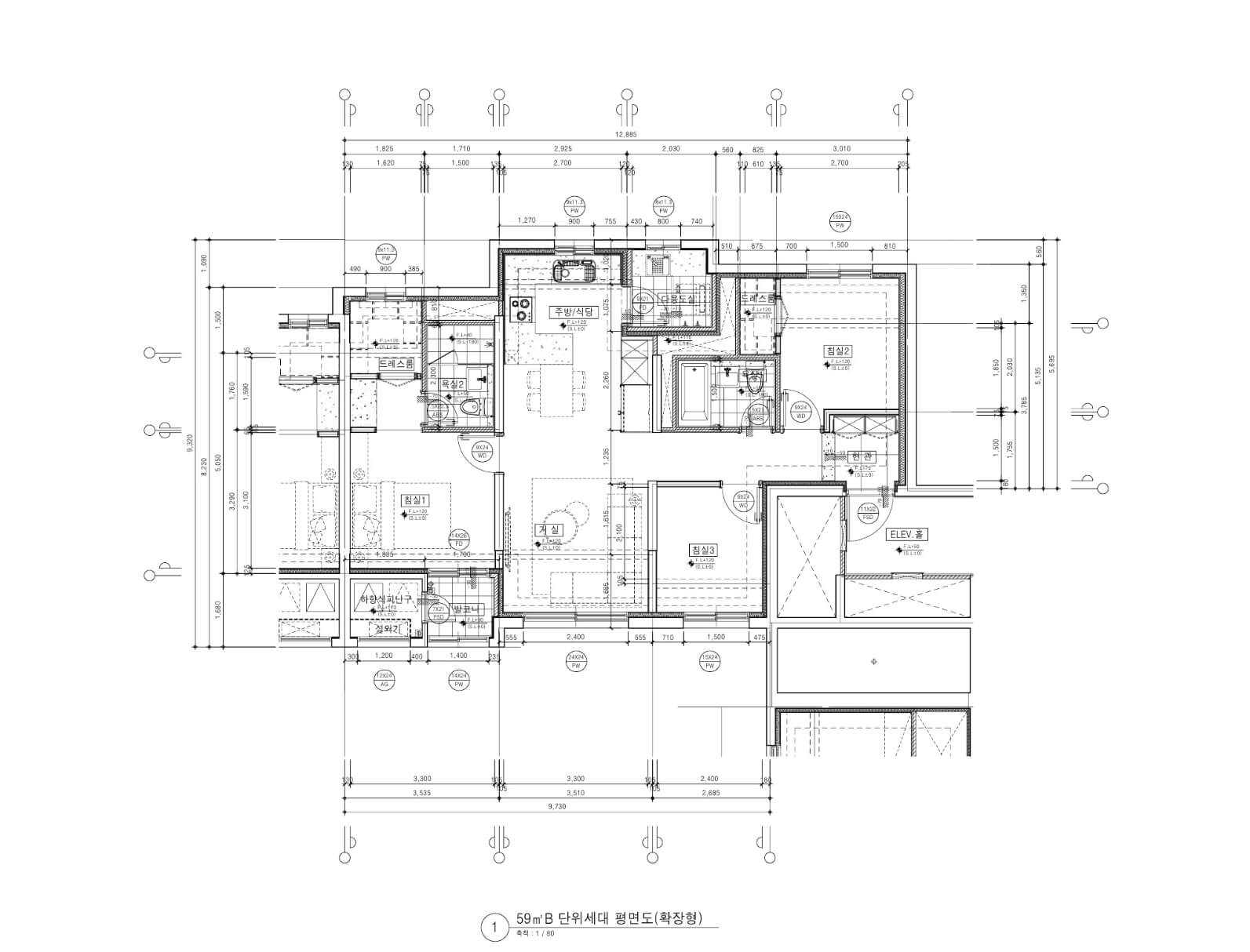
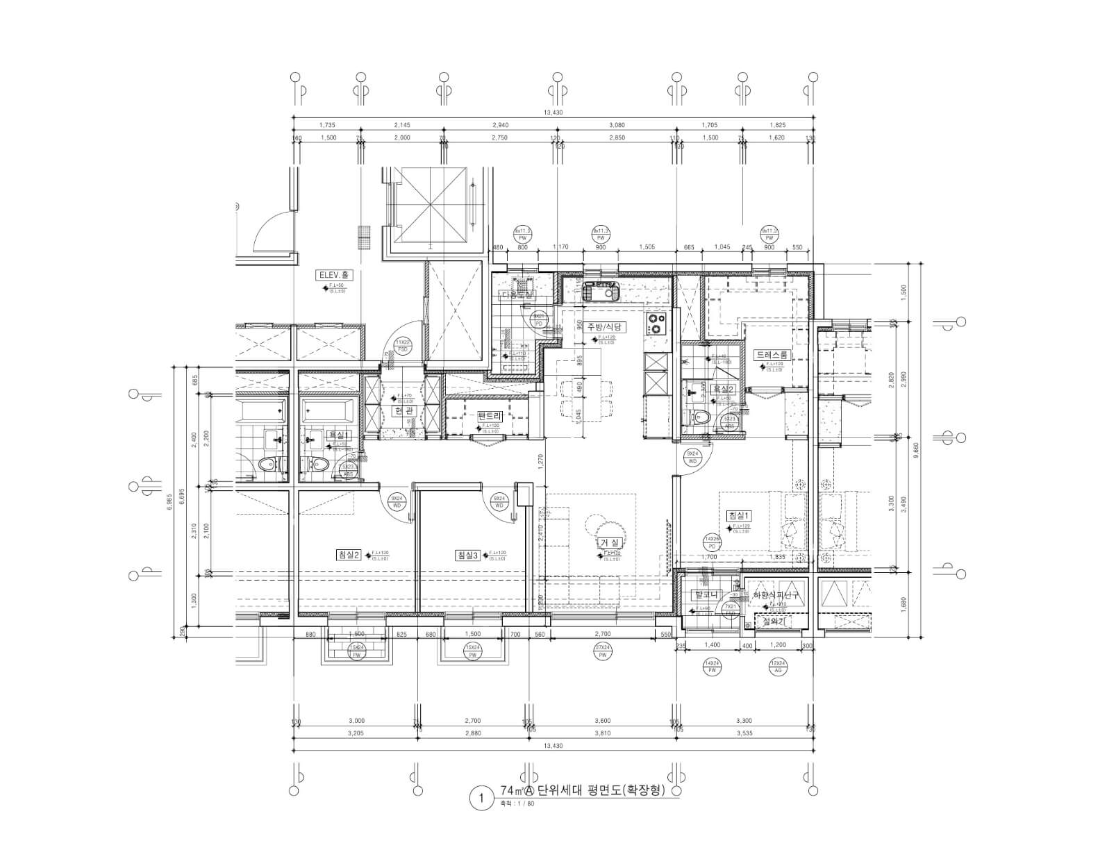
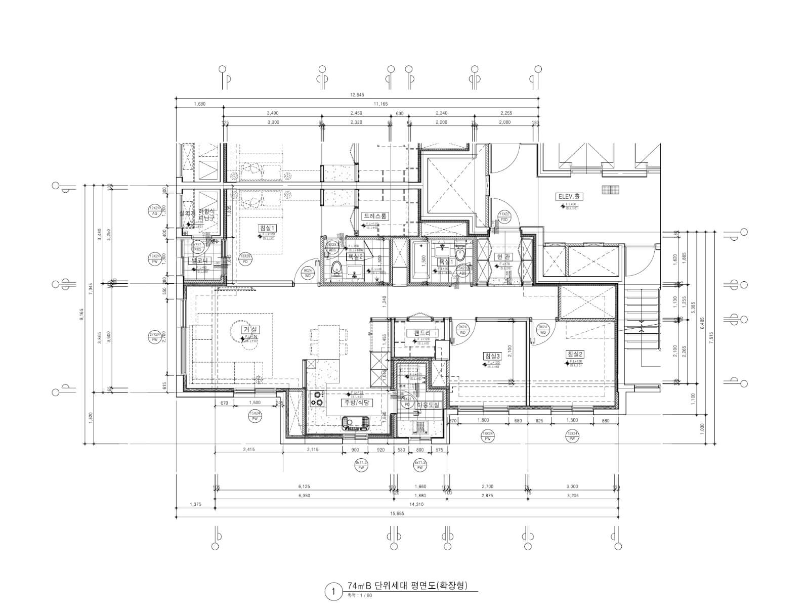
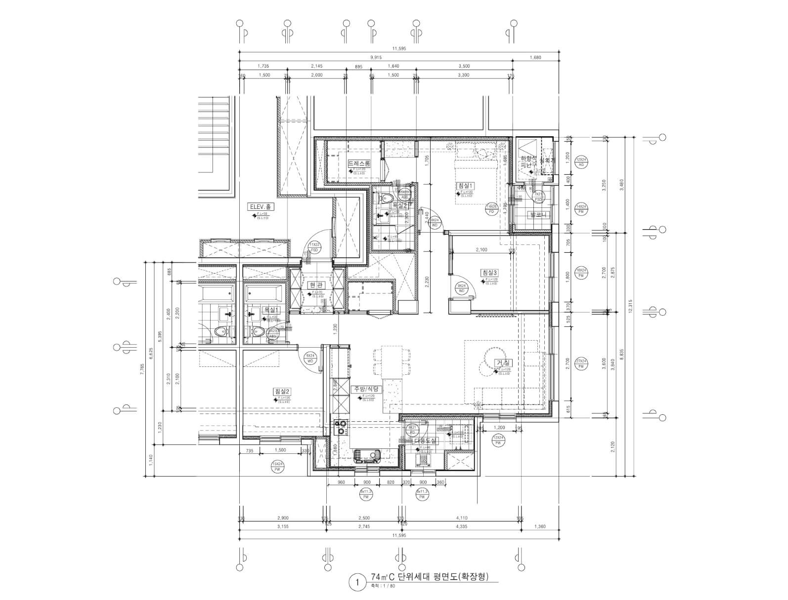
단지배치도 및 평










입지환경





부리남 분석
1. 비교단지 호가 vs 분양가
- 파크리오 84㎡ 호가 : 29.5억(저/27층, 106동)
- 74㎡ 환산시 : 25.98억
- 잠실 르엘 74㎡ 분양가 : 19.13억 예상
- 파크리오(2008년 8월 준공, 6864세대)는 인접한 대단지로 매물은 역에서 가까운 동으로 선정하였습니다. 연식과 세대수를 감안한 비교가치는 31.0억으로 안전마진은 11.87억을 예상합니다.
2. 규제사항 : 투기과열지역, 분양가 상한제 적용
3. 전매제한 : 3년 예상
4. 재당첨제한 : 10년
5. 거주의무 : 2년 예상
6. 중도금대출 : 50%, 중도금대출이자 직접 납부 예상
7. 최종 의견
Part 1 : 예상 안전마진은 12억
잠실 르엘의 안전마진은 12억을 예상니다. 위에서 다루었듯이 분양가는 평당 6104만원으로 알려져 있습니다. 로또 분양 맞고요. 잠실래미안아이파크와 달리 74타입인데도 안전마진이 높은 것은 올해 상반기에 일대가 급격하게 오른 영향입니다.
잠실 아파트, 한 달 만에 5억 뛰었다…서울 곳곳 신고가 속출 | 한국경제
잠실 아파트, 한 달 만에 5억 뛰었다…서울 곳곳 신고가 속출
잠실 아파트, 한 달 만에 5억 뛰었다…서울 곳곳 신고가 속출, 한국부동산원, 6월 전국주택가격동향조사 서울 집값 상승률 0.95%…6년10개월 만에 최대 서울 아파트값 1.44% 급등
www.hankyung.com
Part 2 : 입주시 필요현금
잠실 르엘은 투기과열지역으로 LTV 50%를 적용받습니다. 잠실래미안아이파크 때만해도 DSR만 충족된다면, 분양가 전액 대출이 가능했는데요. 6.27 규제로 이제는 불가능합니다.

과거보다 리뷰를 드리는 입장에서는 심플해졌습니다. '분양가-6억'이 필요현금입니다. 즉, 17.9억-6억=11.9억은 현금이 필요한거죠.
그동안 거주의무가 있어도 3년 유예가 가능했기 때문에 전세를 주는 경우도 있었는데요.

조건부 전세대출이 금지되면서, 신축 입주 단지들에는 비상이 걸렸습니다. 특히, 일반분양권은 거주의무가 붙어 계약갱신청구권 사용이 불가해서, 조합원 매물보다 호가를 더 낮추고 있다는 점도 참고해야합니다.
대출 막힌 메이플자이, 전세값 1억 급락…'세입자 모시기' 비상 - 뉴스1
대출 막힌 메이플자이, 전세값 1억 급락…'세입자 모시기' 비상
소유권 이전 조건부 전세대출 적용…신규 입주 단지 직격탄 대출 불가에 전세 수요 이탈 가능성…집주인, 눈높이 낮춰 "집주인이 전세 계약 의사만 확실하면 1억 원 정도 더 깎아줄 수 있을 거예
www.news1.kr
더 큰 문제는 전세를 주었다가, 전세퇴거자금대출 한도가 1억으로 제한된다는 것입니다. 까다로운 조건을 걸면서, 1억이상으로 전세퇴거자금대출을 받을 수 있다는 것은 6.28이전의 계약만 해당됩니다.
“내 집인데 못 들어간다”…전세퇴거대출 막힌 집주인들 ‘패닉’
“내 집인데 못 들어간다”…전세퇴거대출 막힌 집주인들 ‘패닉’
금융당국이 지난 6월 27일 기습 발표한 대출 규제로 전세 시장이 한 달 넘게 혼란에 빠졌다. 특히 집주인이 임차인에게 전세금을 돌려주기 위한 ‘전세퇴거대출’이 막히면서, 자기 집에 들어가
www.kgnews.co.kr
잠실 르엘은 잔금대출외에도 자금계획에 있어서 2가지를 주의하셔야하는데요.
먼저, 계약금입니다. 분양가상한제지만, 분양가 총액이 크고, 계약금 20%입니다. 계약시에만 3.6억입니다. 어쩔 수 없이 신용대출을 알아볼텐데요. 투기과열지역의 분양임을 잊지 말아야 합니다. 투기과열지역은 신용대출 1억이상을 받고 계약금을 낼 수가 없습니다. 대출받고 집사면, 대출회수는 물론이고, 주택관련 대출이 금지되어버립니다. 분양권은 계약일에 주택수가 카운트되기 때문에, 잠실르엘은 중도금대출부터 불가능하게 될 수 있습니다.

두번째는 중도금대출이자입니다. 최근 강남권 분양에서 이자후불제가 아니라 이자 직접 납부 방식을 취하고 있습니다. 당첨되고 보니, 준공까지 지옥을 맛볼 수 있습니다. 예상보다 한달마다 납부해야하는 이자가 상당히 부담됩니다. 잠실르엘의 예상 납부 이자는 추후 업데이트하도록 하겠습니다.
Part 3 : 청약전략
잠실 르엘에서 주목할 점은 59B㎡타입이 전체물량의 42%에 달합니다. 덕분에 1주택자에게도 추첨제 물량이 배정됩니다. 다만, 대출규제 이후로 경쟁률 및 계약률은 소형평형으로 옮겨가고 있습니다. 그래서, 청약 분석도 간단해졌습니다. 비싼 거하시면 됩니다.

저가점자는 추첨제뿐만 아니라 특별공급도 있습니다. 공공분양도 일반분양도 신생아우선공급이 '당첨 치트키'입니다.

이번 분양에서는 60㎡이하라 미혼가구 생애최초를 노리시는 분들도 계실텐데요. 경쟁률이 높은 단지에서는 그동안 가능성이 희박해서 추천드리지 않았습니다. 하지만, 대출규제 이후로 특공예당에서 당첨사례들이 발견되고 있습니다. 아무래도 소득여건이 붙은 특공에서는 현금여력이 충분치 않은 분들이 계약을 포기하는 경우가 있습니다. 그래서, 일반공급뿐만 아니라 생애최초 특별공급도 꼭 같이 신청하시는 것을 추천드립니다.

서울 살 지 않더라도 당첨될 수 있습니다. 어떻게요? 다자녀특공이라면, 기타 50%가 있습니다.

투기과열지역의 특징은 세대주 요건이 있다는 것인데요. 그래서, 일반공급도 부부중복청약이 불가능합니다. 특별공급에서는 다자녀와 신혼부부 특공 넣으실 분들은 가능하니, 꼭 활용하시기 바랍니다.
이외에도 매번 강남권 분양이 나올 때마다 정리한 질문에 대한 답을 아래에 추가하였습니다. 모집공고가 올라오면 또 업데이트하도록 하겠습니다. 오늘도 부리남이었습니다.
자주 받는 질문 및 답
1.부부가 각각 신용대출 9900만원 받아서 계약금 준비하는건 괜찮을까요?
- 각각 1억이하는 가능합니다.
2. 생초 특공을 와이프가 쓰고 (세대원), 제가 (세대주) 일반분양 같이 써도 문제가 없을까요?
노부모특공 외에도 생애최초 역시 세대주 요건이 있습니다. 즉, 생애최초를 쓴다면, 특공 1번, 일반공급 1번, 총 2번의 기회가 있습니다.

3. 1주택자의 경우도 중도금 대출 받을수 있나요? 얼마까지 나오나요?
- 중도금대출은 주택수, DSR, 15억초과 상관없이 중도금 60% 중 50%를 받을 수 있습니다.
4. 지금 가지고 있는 집 주택담보대출 받아서 계약금 마련해 내고 그 이후로는 50프로 중도금 대출 받을 수 있는거죠?
- 보유주택으로 주담대 실행하면, 생활안정자금 대출이라 추가 주택 매수 금지에 걸려요. 분양권도 주택수 포함이라 계약하는 순간 자금 회수에 걸리실 겁니다. 다른 방법을 찾으셔야할 것 같습니다;
5. 혼인신고 전이라 남편 세대주, 아내 동거인인데요, 이럴경우 님편과 저는 특공에 중복청약 안되는걸까요?
- 개정된 청약제도의 중복청약은 부부기준으로만 허용되어 있습니다. 즉, 동거인 신분에서는 세대원이므로 특별공급에서 중복청약은 불가능합니다.
6. 경기도 1주택자는 추첨제에서 지역우선제도에 밀려 당첨 가능성이 제로 수준이 맞을까요?
- 추첨제도 지역우선이 적용됩니다. 당해지역에서 마감될 가능성이 높으므로, 가능성은 없어보입니다.

7.저도 신용대출 한도를 1억원 받았는데요. 사용하지는 않고 있습니다. 무주택자인데요... 청약에 성공하면 일부 사용예정인데, 1억원이 안 되게 사용하면 되나요? 아니면 한도가 1억이 안되게 해야 하는지 궁금합니다. 1억 초과니까 1억까지는 괜찮은 거지요?
- 이번에 언급드린 신용대출관련 규제는 한도와 기간이 중요합니다. 우선 1억 '초과'라서, 1억까지는 괜찮고요. 1년 '이내'라서, 1년이 지나 갱신하신 경우에는 문제 없습니다.
8. 제가 서울 자가보유 한지 이제 1년 3개월차인데 1주택자 추첨제 물량도 실거주 2년을 채워야하는지 알 수 있을까요?!
- 추첨제 물량도 당해지역 우선이 적용됩니다. 2년이상이어야 당해지역 조건이 되므로, 1년 3개월은 기타지역으로 분류되어 당첨권에서는 어려워보입니다ㅠ
9. 전매제한이라 3년간 매매금지아닌가요?
- 등기시 3년인정입니다.
10. 아이 둘로 신생아 우선공급대상인데 서울 거주 2년미만이면 다자녀로 넣어야겠죠...?
- 축하드립니다. 아이2+신생아 우선공급은 정말 막강하시네요. 하지만, 다자녀에는 우선공급이 없다는 것 아시죠?ㅠ 서울거주2년이었다면, 신혼부부나 생애최초에 우선공급으로 넣으셨다면 더 좋았겠지만, 말씀하신데로 기타지역 50%가 크네요.
분양 홈페이지
롯데캐슬
www.lottecastle.co.kr
단톡방 및 채널 안내
함께 공부하는 단톡방 '부의 사다리'(매달 2일 비번해제)
부의 사다리 : https://open.kakao.com/o/gO3aTU6c
사다리
#이사 #안전이동 #고층가능 #안전포장
open.kakao.com
(오)늘의 (매)물 (기)록 : '오매기'(운영중)
매일 단톡방 회원님들과 관심지역의 매물들을 공유하고 있는 방입니다. 매달 리포트 1건이 의무입니다. 열심히 하실 분들만 참석해주세요. 지난 하락장에서 부자들은 기회를 잡고 부의 사다리를 올랐습니다. 요새가 하락장이라면, 우리도 그래야합니다.
오매기 : https://open.kakao.com/o/gg4IrQAe
오매기
#쫀득쫀득 #당일취급 #제주도
open.kakao.com
붇옹산의 부동산스터디
대한민국 최고+최대의 부동산 카페의 방장님이신 붇옹산님의 네이버 프리미엄 콘텐츠에서도 제 글을 광고없이 만나실 수 있습니다. 붇옹산님이 직접 작성하시는 글을 볼 수 있는 기회는 흔치 않습니다. 부리남은 몰라도 삼토시님은 아시죠? 붇옹산, 삼토시, 그리고 부리남이 함께 하는 네이버 프리미엄 콘텐츠도 많은 관심 부탁드립니다.
붇옹산의 부동산스터디 : 네이버 프리미엄콘텐츠
200만 부동산스터디 카페 운영자 붇옹산의 부동산 투자로 돈 버는 공부.
contents.premium.naver.com
주의사항
1. 투자의 책임 : 게시글은 모집공고와 분양홈페이지를 기반으로 한 개인의 의견이며, 투자의 책임은 투자자 본인에게 있음을 알려드립니다.
2. 지적재산권 및 사용권한 : 본 포스팅의 지적재산권은 부리남에게 있으며, 컨텐츠의 사용권한은 별도의 계약을 체결한 자에 한합니다.